Продаётся просторная и светлая квартира в двухквартирном жилом доме, находящемся на участке в 10,5 соток.
Удобная планировка позволяет вам воплотить в жизнь свои идеи или сделать перепланировку по вашему желанию.
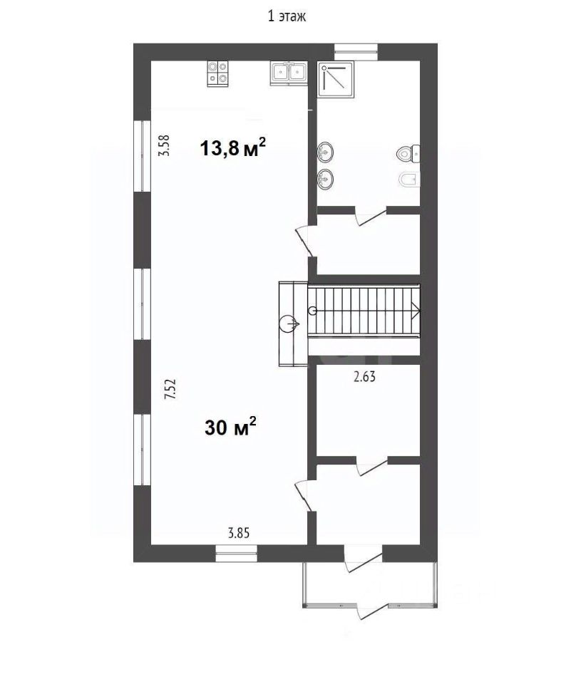
На первом этаже расположены санузел, котельня, кухня и зал. Из кухни есть отдельный выход в сад. Полы с подогревом обеспечивают комфорт.
На втором этаже находятся санузел и две спальни. Большая спальня имеет выход на балкон и в гардеробную, отдельную комнату с окном.
Мансардный этаж представляет собой помещение площадью 70 кв.м, которое разделено на две комнаты.
Отопление осуществляется газовым котлом, что позволяет снизить коммунальные платежи. Водоснабжение и канализация центральные.
Продаётся просторная и светлая квартира в двухквартирном жилом доме, находящемся на участке в 10,5 соток.
Удобная планировка позволяет вам воплотить в жизнь свои идеи или сделать перепланировку по вашему желанию.
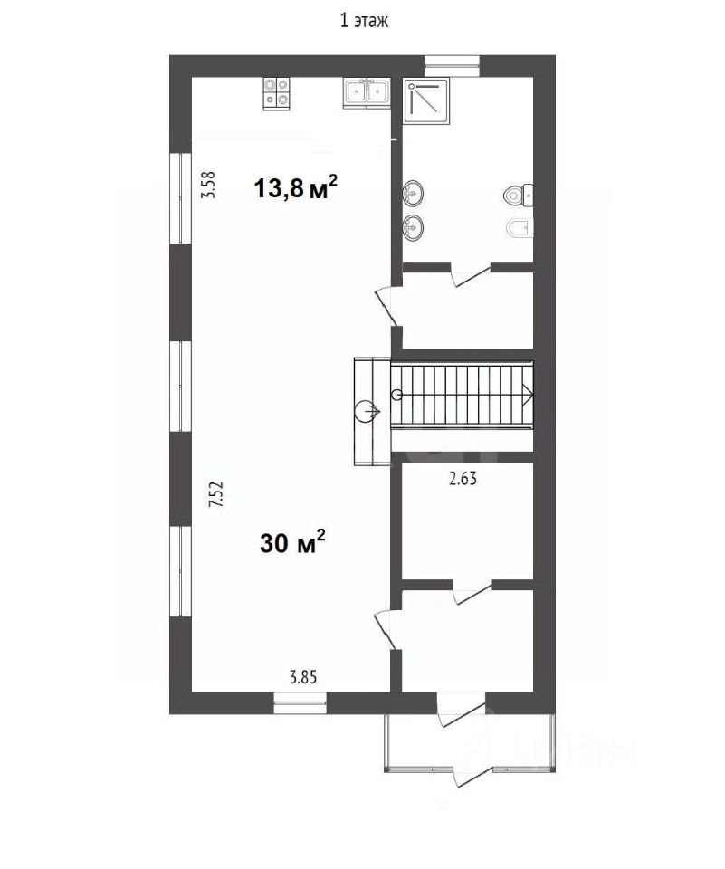
На первом этаже расположены санузел, котельня, кухня и зал. Из кухни есть отдельный выход в сад. Полы с подогревом обеспечивают комфорт.
На втором этаже находятся санузел и две спальни. Большая спальня имеет выход на балкон и в гардеробную, отдельную комнату с окном.
Мансардный этаж представляет собой помещение площадью 70 кв.м, которое разделено на две комнаты.
Отопление осуществляется газовым котлом, что позволяет снизить коммунальные платежи. Водоснабжение и канализация центральные. Материал стен - пеноблоки, а кровля и стены дополнительно утеплены.
Территория дома огорожена забором, парковка на территории доступна. В собственности имеется 5,5 соток земли в черте города. В саду выращены туи, вишня, смородина, крыжовник и малина. Из сада можно попасть в небольшой домик, который можно использовать как дополнительное помещение, например, гараж или банный комплекс.
Дом находится в исторической части города, вдали от шума и суеты. В непосредственной близости находятся детский сад (2 минуты пешком) и школа. Остановка общественного транспорта в 400 метрах от дома, а до центра города всего 5 минут пешком. Рядом отсутствуют шум от дорог и большие многоэтажные здания.
Местоположение дома идеально - прекрасный тихий уголок почти в самом центре города.