Если цена в объявлении изменится, мы сразу сообщим вам об этом на электронную почту.
Нажимая «Подписаться», вы соглашаетесь с правилами.
продам 1-к, Интернатная, 102 470 000 ₽
17 ноя
Дата публикации объявления
Обн. вчера
Дата обновления объявления
2
Количество просмотров (+ просмотры за сегодня)
75 305 ₽/м²
Чистая продажа
Термин "Чистая продажа" означает, что в квартире никто не прописан или
есть куда выписаться и вывезти вещи. Это лучший вариант для покупателя.
Вероятность срыва сделки минимальна.
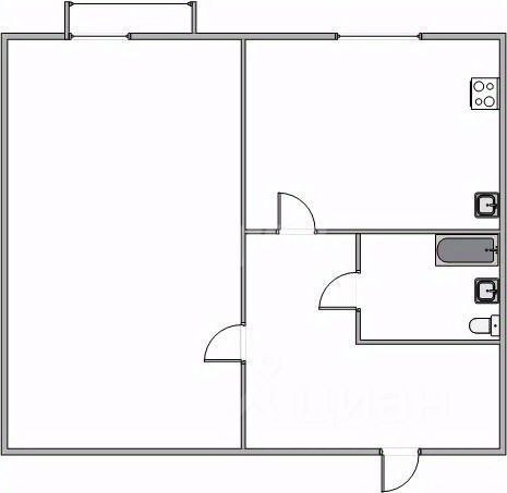
id:4296. Обратите внимание! Отличная 1- комнатная квартира улучшенной планировки! Продается 1-комнатная квартира на 1 этаже пятиэтажного кирпичного дома в р-не Печаткино. Общая площадь - 32,8 кв. м., площадь, кухни - 8 кв. м.
- Квартира улучшенной планировки, светлая, теплая, подходит под семейную ипотеку 6%. - Большая вместительная кухня - мечта любой хозяйки? Кухонный гарнитур остается в подарок! - Окна пластиковые стеклопакеты. - Сделан косметический ремонт, натяжные потолки. Можно сразу заехать и жить! - Лоджия застеклена пластиковыми стеклопакетами. - Санузел совмещен, отделан кафелем. - Хорошая входная дверь. - Спокойные соседи, чистый подъезд. - Во дворе есть место для парковки машины.
id:4296. Обратите внимание! Отличная 1- комнатная квартира улучшенной планировки! Продается 1-комнатная квартира на 1 этаже пятиэтажного кирпичного дома в р-не Печаткино. Общая площадь - 32,8 кв. м., площадь, кухни - 8 кв. м.
- Квартира улучшенной планировки, светлая, теплая, подходит под семейную ипотеку 6%. - Большая вместительная кухня - мечта любой хозяйки? Кухонный гарнитур остается в подарок! - Окна пластиковые стеклопакеты. - Сделан косметический ремонт, натяжные потолки. Можно сразу заехать и жить! - Лоджия застеклена пластиковыми стеклопакетами. - Санузел совмещен, отделан кафелем. - Хорошая входная дверь. - Спокойные соседи, чистый подъезд. - Во дворе есть место для парковки машины. - Гарантируем юридическое сопровождение сделки, работаем со всеми видами сертификатов. Поможем с подбором ипотечной программы.
Развитая инфраструктура. В шаговой доступности школы, детские сады, сетевые магазины, аптеки, остановка общественного транспорта. Не упустите свой шанс, эта квартира может стать вашей! Звоните!