с. Мякса (Череповецкий район)
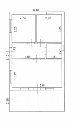
В продаже просторный дом, построенный в русском стиле и с современным решением. Предложение для круглогодичного проживания в укромном месте с красивыми видами из окна. Дом находится в селе Мякса, которое расположено на берегу Рыбинского водохранилища в 28 км от гор. Череповца. Мякса - село с богатой историей, в летописях оно упоминается с XV века, сейчас там расположен Леушенский женский монастырь, рядом усадьба поэта Константина Батюшкова (Хантаново). В Мяксе находится Администрация, развитая инфраструктура: почта, банк (СБЕР), амбулатория, станция скорой помощи, школа, детский сад, несколько продуктовых магазинов, пункт маркетплейс, а также место для экскурсий Чайный домик. Мякса - это чистый воздух, рыбалка, леса, богатые ягодами и грибами. Дом построен в 2009году, с тех пор он уже дал усадку и новый владелец может оформить интерьер по своему вкусу. Дом имеет два входа, запланировано основное крыльцо с проездной дороги, а также есть крыльцо со стороны двора. Строился дом из качественного бревна сосны (Сямжа) без перерубов, размер 12/12 м, основное здание 9/9 , высота потолка 3,4м всего 11 рядов брёвен, мансарда 6/12м, также с двух сторон дома расположена большая веранда с просторными окнами и с шикарным видом на водохранилище. Фундамент блочный, имеется большое подвальное помещение с высотой потолка 3м, всегда сухое. На крыше покрытие ондулин. Дом очень тёплый, в нём легко дышится, а также отличная шумоизоляция. Коммуникации: газ подведён до участка, электричество 15кВт, отопление от электричества, при установке газового котла менять ничего не потребуется, трубы пластиковые, установлены радиаторы (есть ещё несколько новых в наличии), вода в дом заведена родниковая, сделана канализация. На земельном участке сделано межевание, всего 22,8сот., по периметру установлены металлические столбы. На территории растут плодовые деревья и кустарники (яблони вишни и др.). По противоположному краю, вдоль второстепенной дороги построен капитальный кирпичный гараж с двумя воротами и баня. Характеристики гаража: фундамент заливной, высота потолка 4м, высота ворот 2,8 м, имеется новое шиномонтажное оборудование, а также новый автоподъёмник. Баня построена из бревна ели (Бабаево), размер основного помещения 3/4м, с верандой - 7/9м, отапливается металлической печкой (внутри-кирпич). Возле участка есть 20сот. земли, которыми можно пользоваться, там, по решению администрации не будет сформирован отдельный участок (собственники дома разработали на нём грядки).Продажа предполагает: жилой дом+гараж+баня и з/у 22,8сот.На объектах отсутствуют обременения, один взрослый собственник, полная стоимость в ДКП. По вопросам покупки и договориться на просмотр обращайтесь с 10-19час. в рабочие дни.