2-к, Южакова, 13 Показать на карте
Вологда
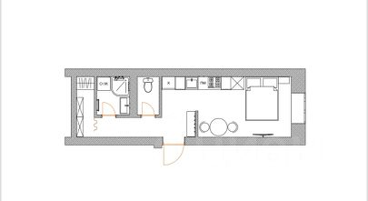
Продается уютная двухкомнатная квартира в Вологде по адресу: улица Южакова, 13. Квартира расположена на первом этаже девятиэтажного кирпичного дома, построенного в 1994 году. Общая площадь квартиры составляет 53.4 кв.м, из которых 29.9 кв.м — жилая площадь, а кухня занимает 8.9 кв.м. Потолки высотой 2.5 метра создают уютное пространство для жизни.Квартира без ремонта, что дает вам возможность воплотить все свои дизайнерские идеи. Планировка включает две просторные комнаты и одну лоджию, окна выходят как на улицу, так и во двор, что обеспечивает хорошее естественное освещение. Санузел раздельный, что удобно для семьи. Дом оборудован двумя пассажирскими и одним грузовым лифтом, что является большим плюсом для комфортного проживания. Вокруг дома находятся все необходимые объекты инфраструктуры: школы, детские сады, клиники и магазины, что делает район удобным для семей с детьми.Удобное расположение дома позволяет быстро добираться до основных транспортных артерий города. В шаговой доступности находятся остановки общественного транспорта, что делает перемещение по городу быстрым и удобным.Квартира продается без посредников, поэтому вы можете рассчитывать на прозрачность сделки. Ипотека возможна, что облегчает процесс покупки для тех, кто рассматривает кредитные варианты. Все документы готовы к сделке, обременений нет.Приглашаем вас на просмотр квартиры, чтобы оценить все ее преимущества. Записывайтесь на удобное для вас время. Мы будем рады ответить на все ваши вопросы и помочь вам сделать правильный выбор.
53 м2
1 / 9 этаж
Кирпич
- Показать контакты
- Добавить в избранное
53 м2
1 / 9 этаж
Кирпич
4 650 000
87 079 /м2
